KOUPIT
CYPRUS
FAMAGUSTA
LIMASSOL
NIKÓSIE
PAPHOS
FRANCIE
FRANCOUZSKÁ RIVIÉRA
FRANCOUZSKÉ ALPY
JIHOZÁPAD
NORMANDIE
PAŘÍŽ
PROVENCE
RHÔNE-ALPES
ITÁLIE
COMO
MILÁN
TUSCANY
KARIBIK
MAROKO
ESSAOUIRA
MARRAKECH
TANGER
MONAKO
CARRÉ D'OR
FONTVIEILLE
JARDIN EXOTIQUE
LA CONDAMINE
LARVOTTO
MONTE-CARLO
PORTUGALSKO
CASCAIS
COMPORTA
LISABON
ŠPANĚLSKO
ANDALUSIE
CATALONIA
COMUNIDAD VALENCIANA
GALICIA
IBIZA
KASTILIE A LEÓN
MADRID
MALLORCA
MENORCA
OKOLÍ MADRIDU
SPOJENÉ ARABSKÉ EMIRÁTY
SPOJENÉ STÁTY
JIŽNÍ FLORIDA
NEW YORK
ŠVÝCARSKO
FRIBOURG
ŠVÝCARSKÉ ALPY
VAUD
ŽENEVA
PRONÁJEM
KRÁTKODOBÉ PRONÁJMY
FRANCIE
FRANCOUZSKÁ RIVIÉRA
JIHOZÁPAD
PROVENCE
KARIBIK
PORTUGALSKO
ŠPANĚLSKO
IBIZA
MALLORCA
MENORCA
ŠVÝCARSKO
UDÁLOST
FRANCIE
DLOUHODOBÉ PRONÁJMY
CYPRUS
FRANCIE
FRANCOUZSKÁ RIVIÉRA
JIHOZÁPAD
PAŘÍŽ
PROVENCE
ITÁLIE
COMO
MILÁN
TUSCANY
KARIBIK
MONAKO
CARRÉ D'OR
MONEGHETTI
PORTUGALSKO
ŠPANĚLSKO
IBIZA
MADRID
MALLORCA
OKOLÍ MADRIDU
SPOJENÉ ARABSKÉ EMIRÁTY
SPOJENÉ STÁTY
ŠVÝCARSKO
ŠVÝCARSKÉ ALPY
VAUD
OCEŇOVÁNÍ
POBOČKY
ANDORRA
CYPRUS
FRANCIE
AIX-EN-PROVENCE
ALPILLES
BORDEAUX
CANNES
CAP D'ANTIBES
CAP FERRET
DEAUVILLE
FAYENCE
LUBERON
LYON
MARSEILLE
MEGEVE
MOUGINS
PAŘÍŽ A OKOLÍ
OKOLÍ PAŘÍŽE
PAŘÍŽ
PYLA - ARCACHON
SAINT JEAN CAP FERRAT
SAINT PAUL DE VENCE
SAINT TROPEZ
SANARY-SUR-MER
VALBONNE
ITÁLIE
MILAN
TOSKÁNSKO
KARIBIK
MONAKO
MOROKO
PORTUGALSKO
COMPORTA
LISABON
ŠPANĚLSKO
IBIZA
MADRID - CHAMARTÍN
MADRID - CHAMBERÍ/CENTRO
MADRID - POZUELO
MADRID - SALAMANCA
MALLORCA - PALMA
MALLORCA - SANTA PONSA
MENORCA
SPOJENÉ ARABSKÉ EMIRÁTY
ŠVÝCARSKO
CRANS-MONTANA
GENEVA
GSTAAD
LAUSANNE
MONTREUX - NYON
SION
VERBIER
SLUŽBY
SPRÁVA NEMOVITOSTÍ
DEVELOPMENT
CYPRUS
LIMASSOL
NIKÓSIE
PAPHOS
FRANCIE
PORTUGALSKO
COMPORTA
LISABON
ŠPANĚLSKO
ANDALUSIE
CATALONIA
IBIZA
MADRID
MALLORCA
MENORCA
OKOLÍ MADRIDU
ŠVÝCARSKO
INVESTICE
CYPRUS
FRANCIE
FRANCOUZSKÁ RIVIÉRA
JIHOZÁPAD
PROVENCE
ITÁLIE
KARIBIK
MONAKO
CARRÉ D'OR
FONTVIEILLE
LA CONDAMINE
MONEGHETTI
ŠPANĚLSKO
MADRID
MENORCA
ŠVÝCARSKO
LIFE CAPITAL
CAPITAL MARKETS
LUXURY CONCIERGE
O NÁS
JOHN TAYLOR
HISTORIE
MAGAZÍN
STAŇTE SE PARTNERY
KARIÉRA
BLOG
PRESS REVIEW
ARTCURIAL GROUP
ARTCURIAL
ARQANA
NEWS
PARTNERI
COMPASS
CAMPER & NICHOLSONS
YACHTING
KOUPIT
PRONÁJEM
ENG
FRA
ITA
ESP
DEU
RUS
CZE
PRT
EUR
GBP
USD
CHF
CZK
QAR
COL
SAR
MUR
AED
METRIC
IMPERIAL
zpět
>
Domov
>
Jachta
>
Prodej
Upoutala tato nemovitost Vaší pozrnost?
Kontakt
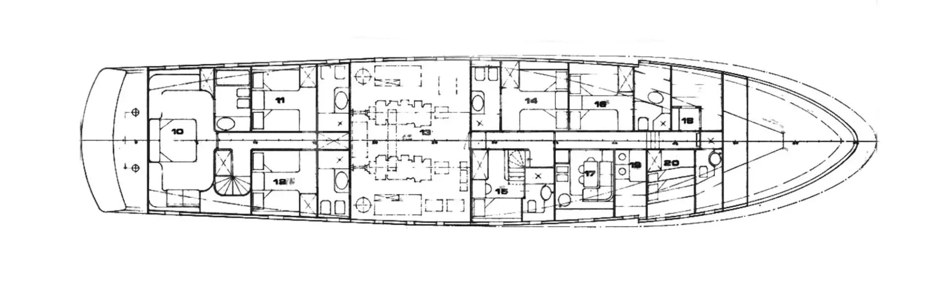
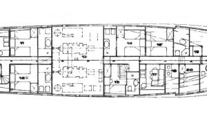
Motorová jachta Na prodej Bel-Ami Ii,
1 200 000
EUR
34 m
4 Kabiny
Guests 10
Crew 6
V0100CN
Prodej
Motorová jachta
SPECIFIKACE
Rok výstavby : 1988
Rok renovace : 2019
Length : 34m
Beam : 7.1m
Draft : 2.19m
4 Kabiny
Cruising speed : 12 Knots
Camper & Nicholsons
Kontaktní formulář
98000
MONAKO
Monaco
,
MONAKO
Kontaktní formulář
Rád bych se dozvěděl více informací o produktu V0100CN. Kontaktujte mě prosím.
* Povinná pole
Požadované údaje jsou nutné ke zpracování Vaší žádosti. Máte právo do svých údajů kdykoli nahlédnout, změnit je a vymazat.
zpět
Pobočky
Nemovitosti SPOJENÉ STÁTY
Nemovitosti FRANCIE
Nemovitosti ŠVÝCARSKO
Nemovitosti ŠPANĚLSKO
Nemovitosti MAROKO
Nemovitosti ITÁLIE
Nemovitosti MONAKO
Nemovitosti PORTUGALSKO
Nemovitosti CYPRUS
Nemovitosti SPOJENÉ ARABSKÉ EMIRÁTY
Nemovitosti KARIBIK
MAKE ENQUIRY