• Vila Na prodej San-Juan, Port De Sant Miquel, Ibiza
    7 800 000 EUR

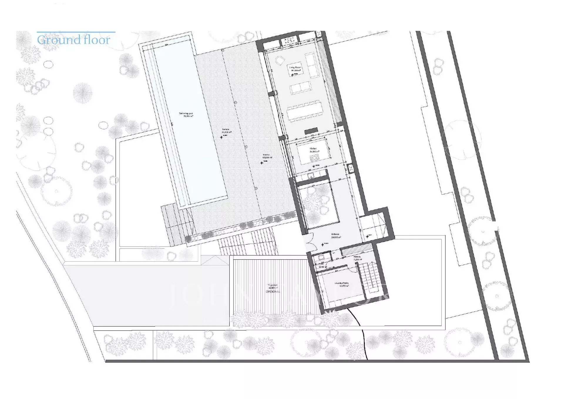
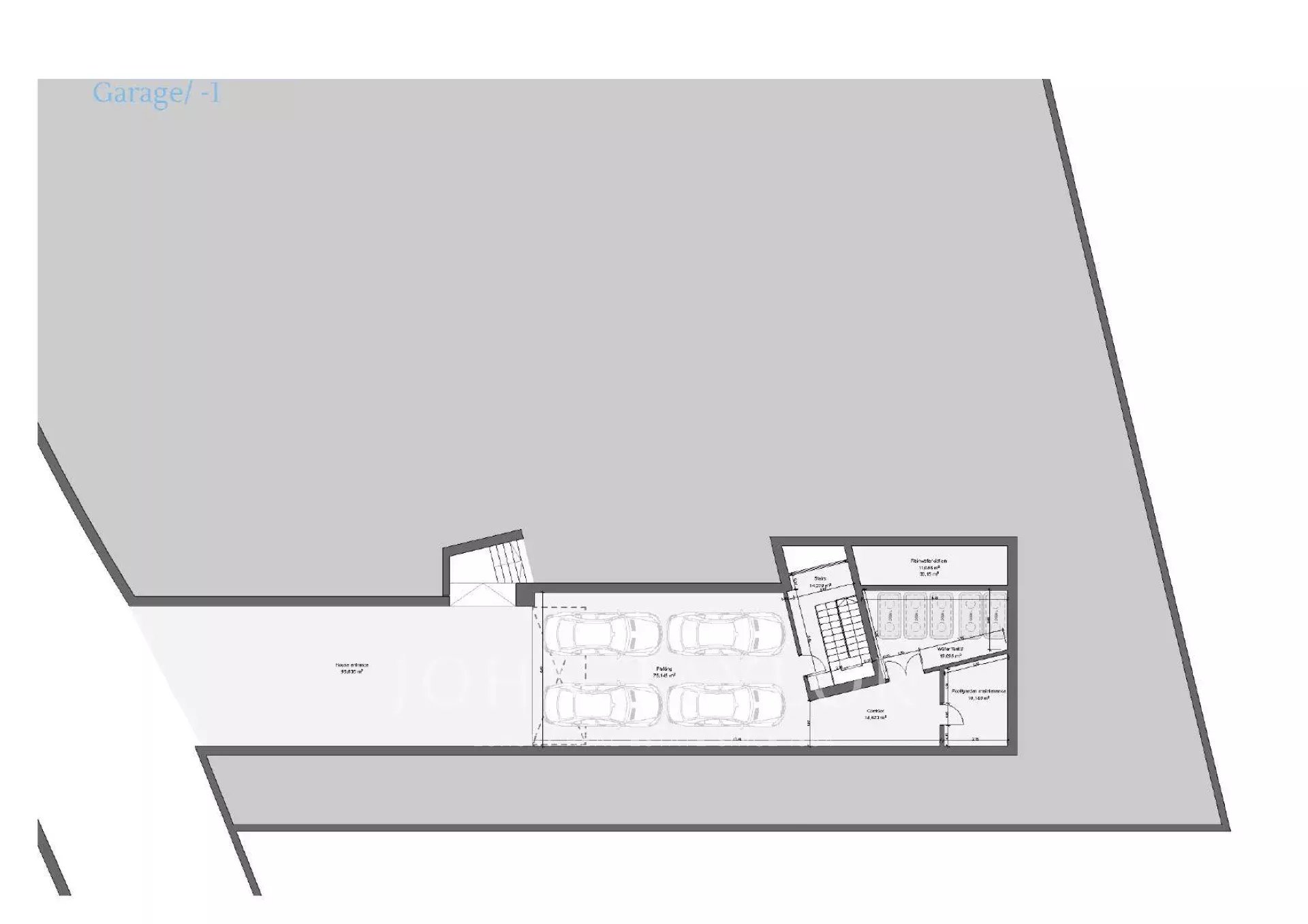
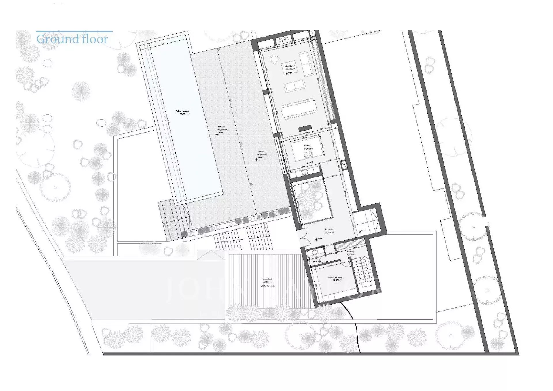
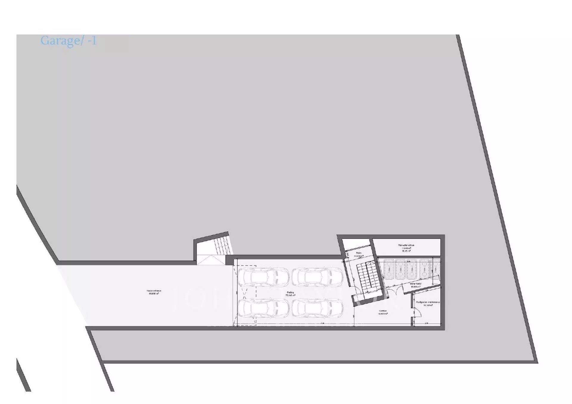
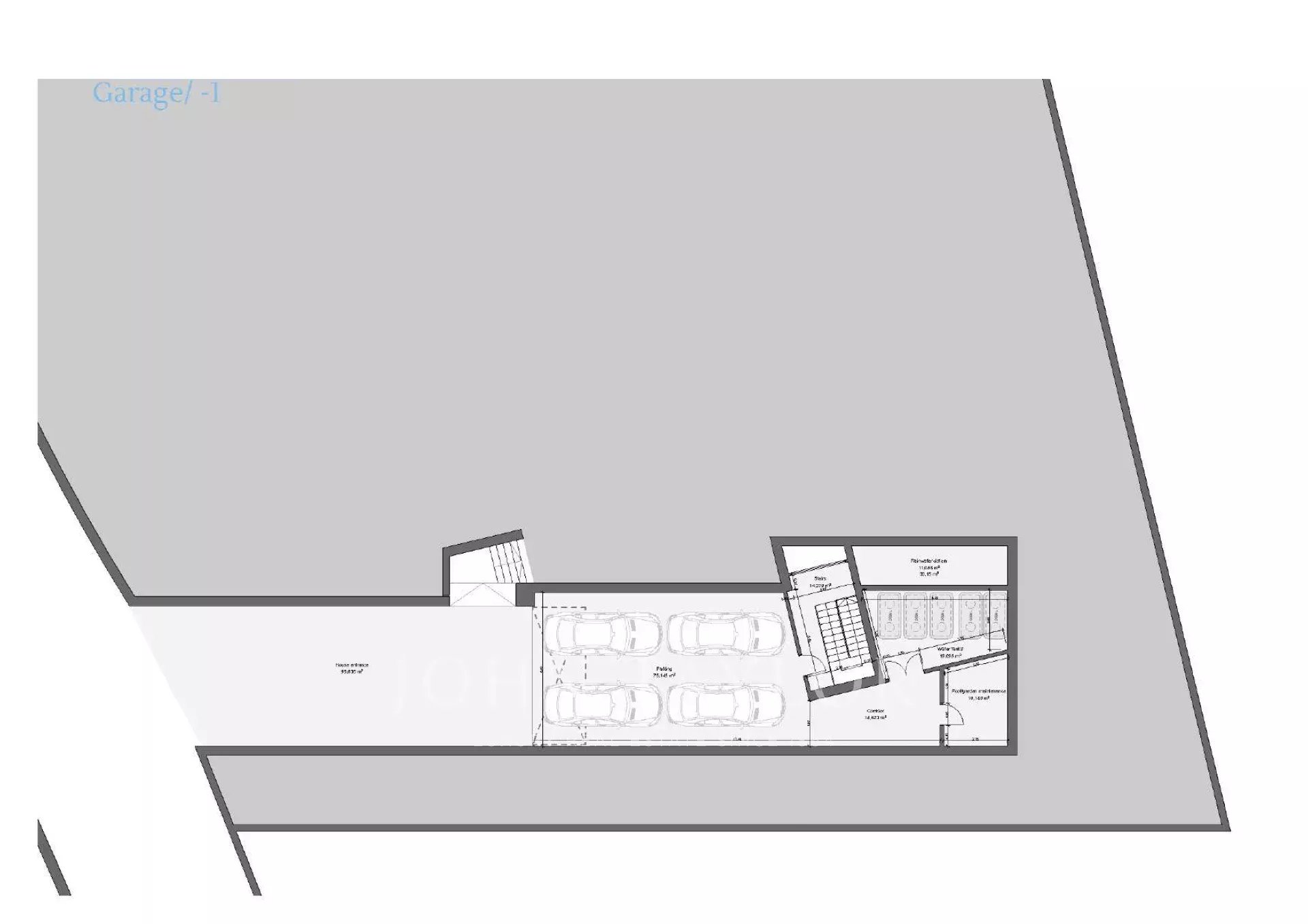
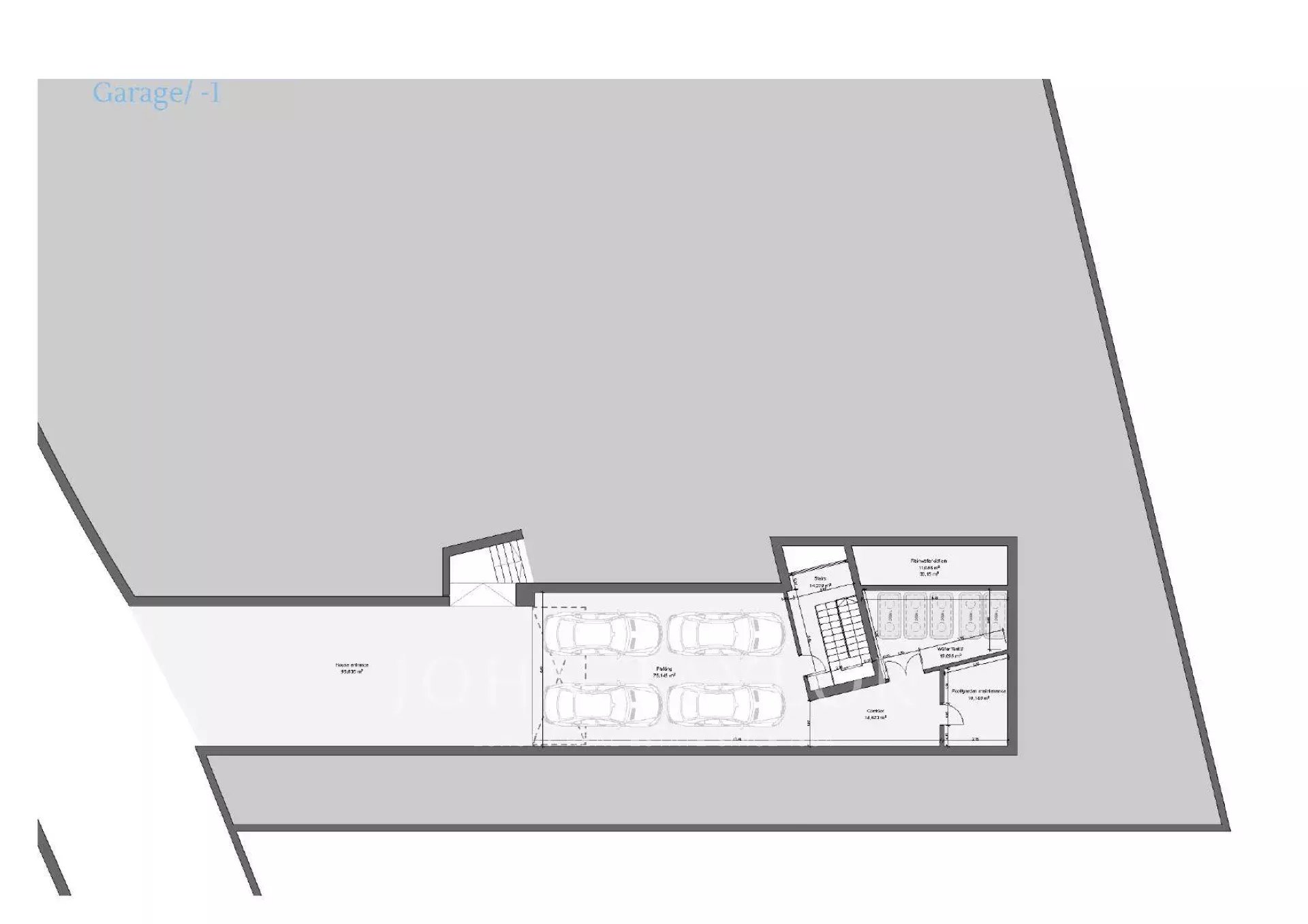
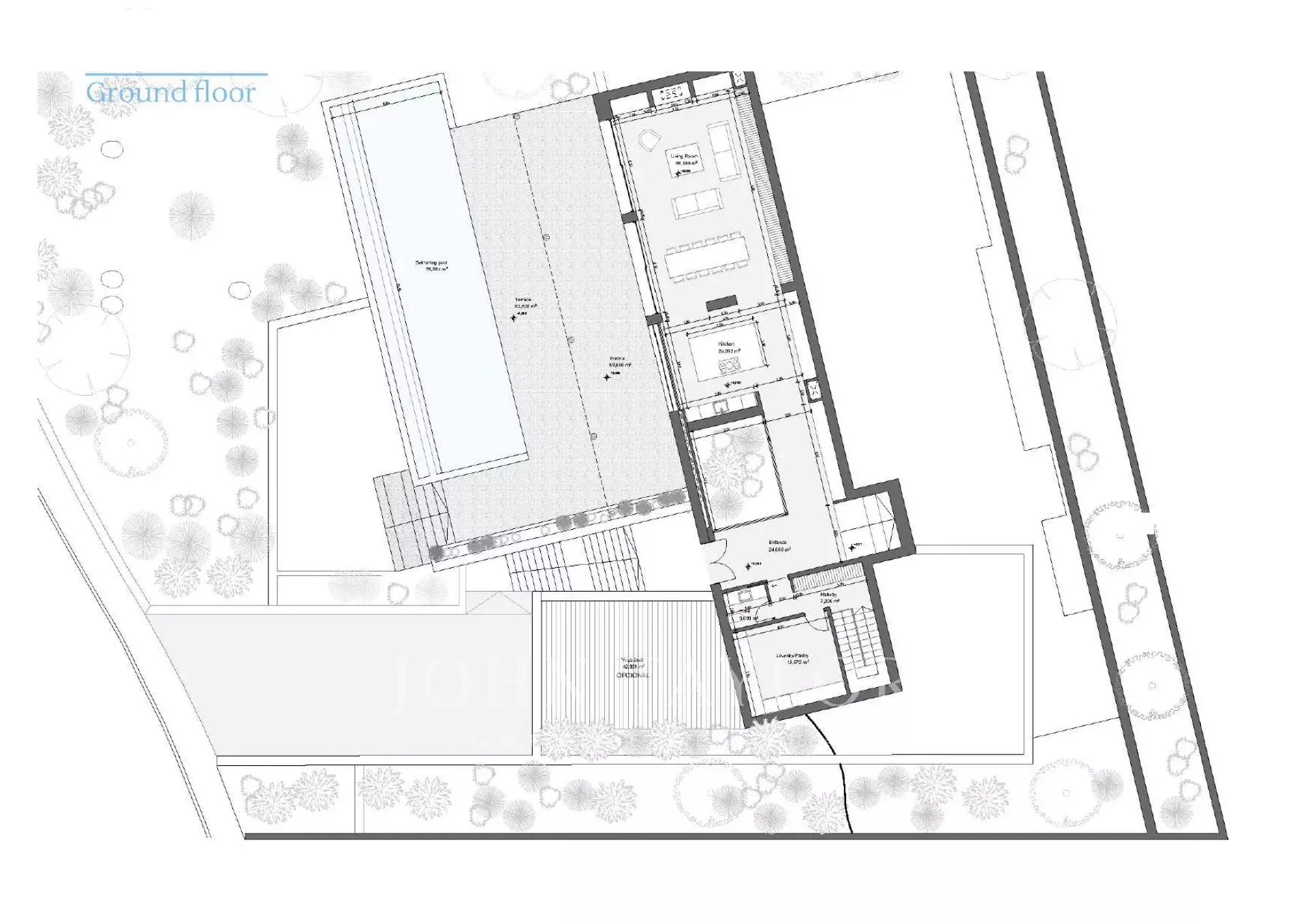
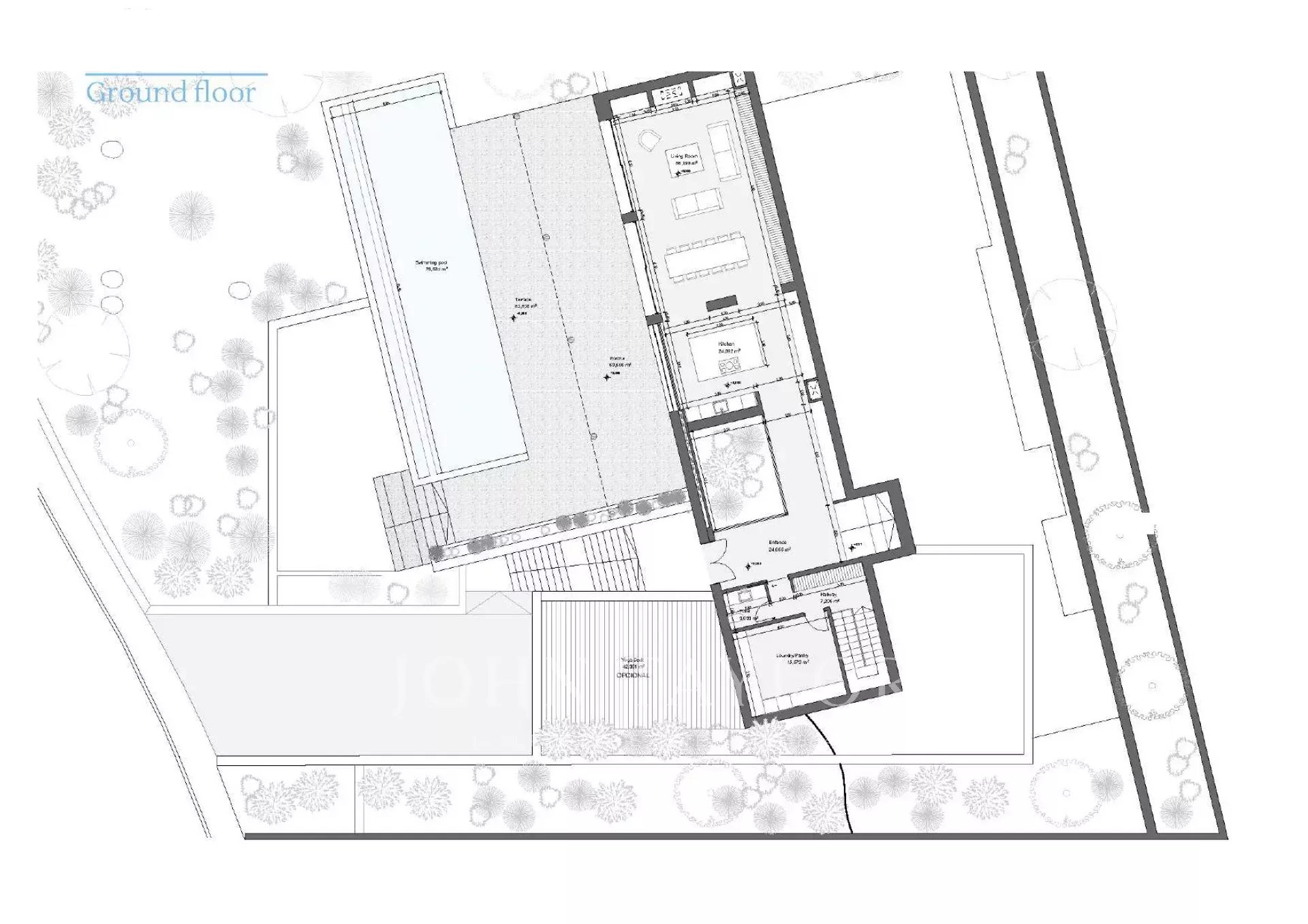
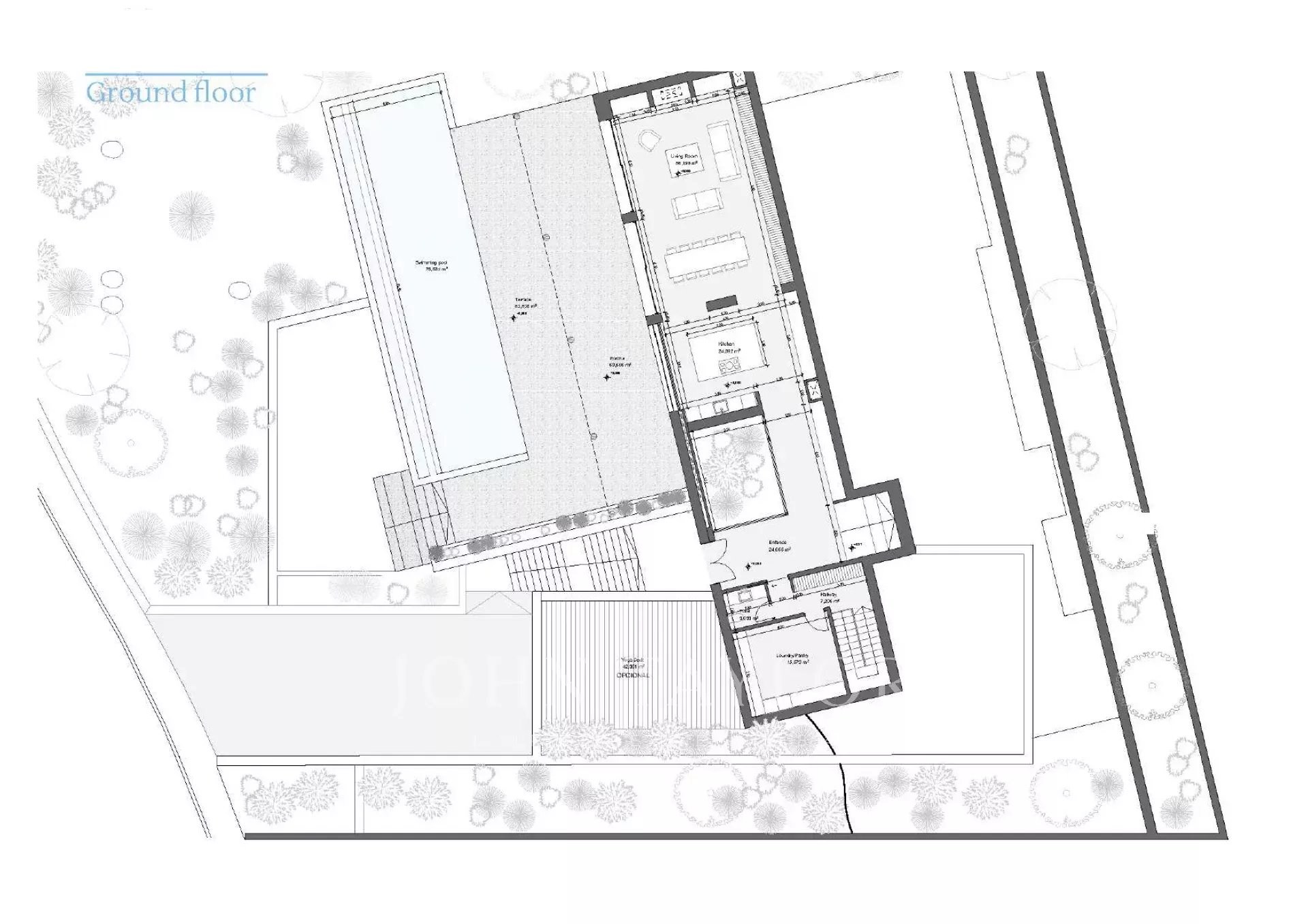
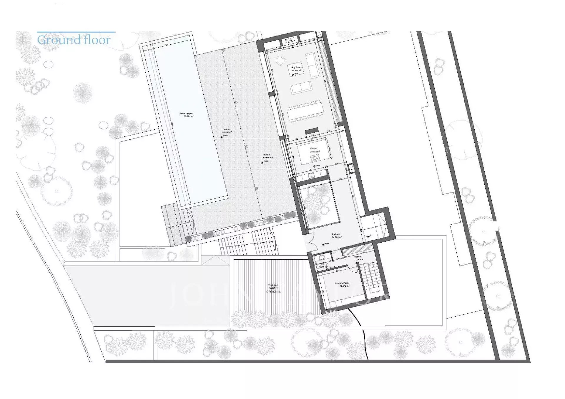
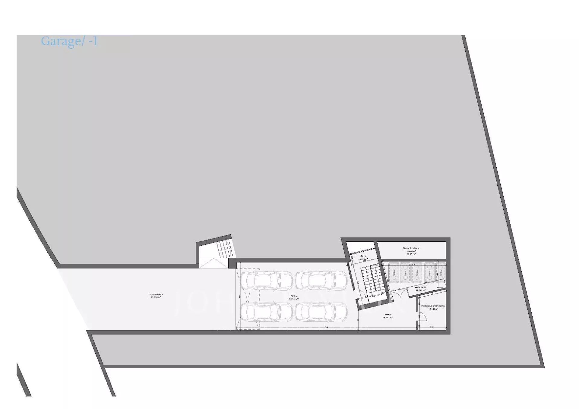
Plocha 711 m²711 m²Pozemek 1 700 m²1 700 m²6 Pokoje6 Pokoje6 Koupelna6 KoupelnaExpozice West West Výhled  Moře Moře Garáž / garážeGaráž

  • V0632IB
  • Prodej
  • Vila

Občanská Vybavenost

  • Pláž
  • Supermarket

Luxusní realitní kancelár IBIZA
  • JT REAL ESTATE IBIZA SL
    Terrazas De Botafoch
    Passeig Joan Carles I, 39
  • IBIZA
  • ŠPANĚLSKO

John Taylor
Kontaktní formulář

* Povinná pole
Požadované údaje jsou nutné ke zpracování Vaší žádosti. Máte právo do svých údajů kdykoli nahlédnout, změnit je a vymazat.