• Stavební pozemky Na prodej Cala Vinyas, Mallorca, Španělsko
    995 000 EUR

Expozice South South Výhled  Neomezeně Hory Neomezeně Hory 

Okouzlující pozemek s licencí a projektem pro vilu v Cala Vinyas

  • V1042SP
  • Prodej
  • Stavební pozemky

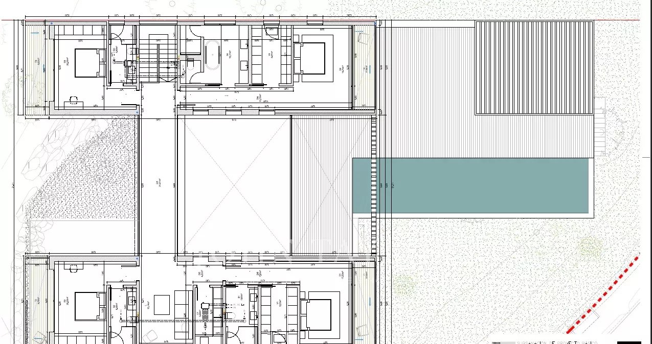
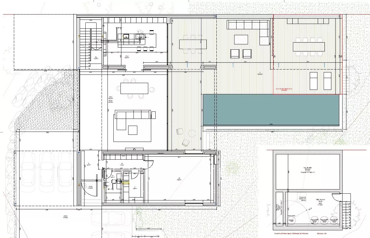
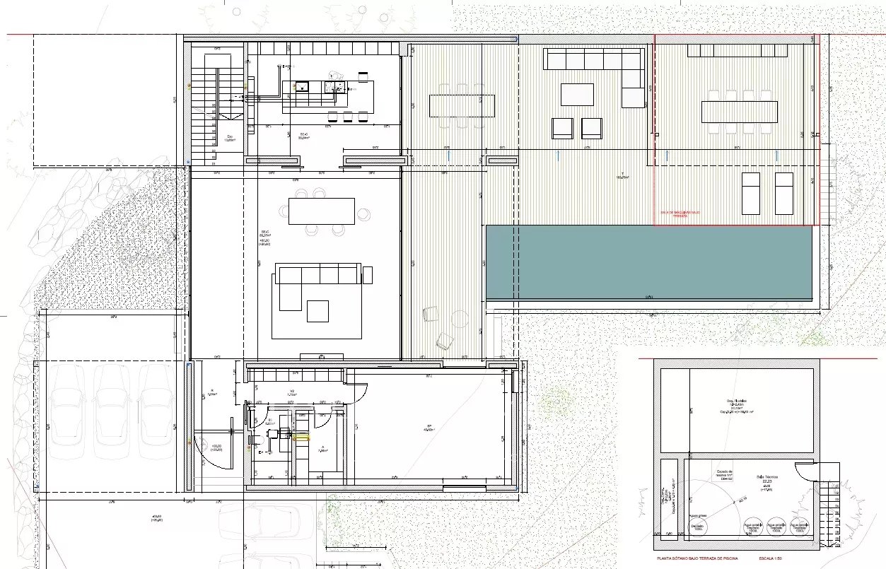
Tento velký městský pozemek o rozloze 1600 metrů má vynikající polohu pouhé 2 minuty chůze od nádherné bílé písečné pláže Cala Vinyas a pouhých 5 minut jízdy od malebné zátoky Cap Falcó. Díky svažitosti pozemku a jeho jihozápadní orientaci je z něj nerušený výhled na háj a zátoku Cala Vinyas.
Tento jedinečný projekt má schválenou licenci na výstavbu vily o rozloze 480 m2, byl navržen renomovaným místním architektem a navrhuje rodinnou vilu k užívání si dovolené nebo jako vaše první bydliště.
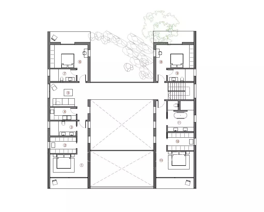
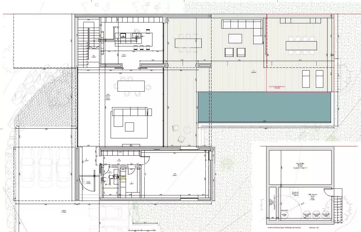
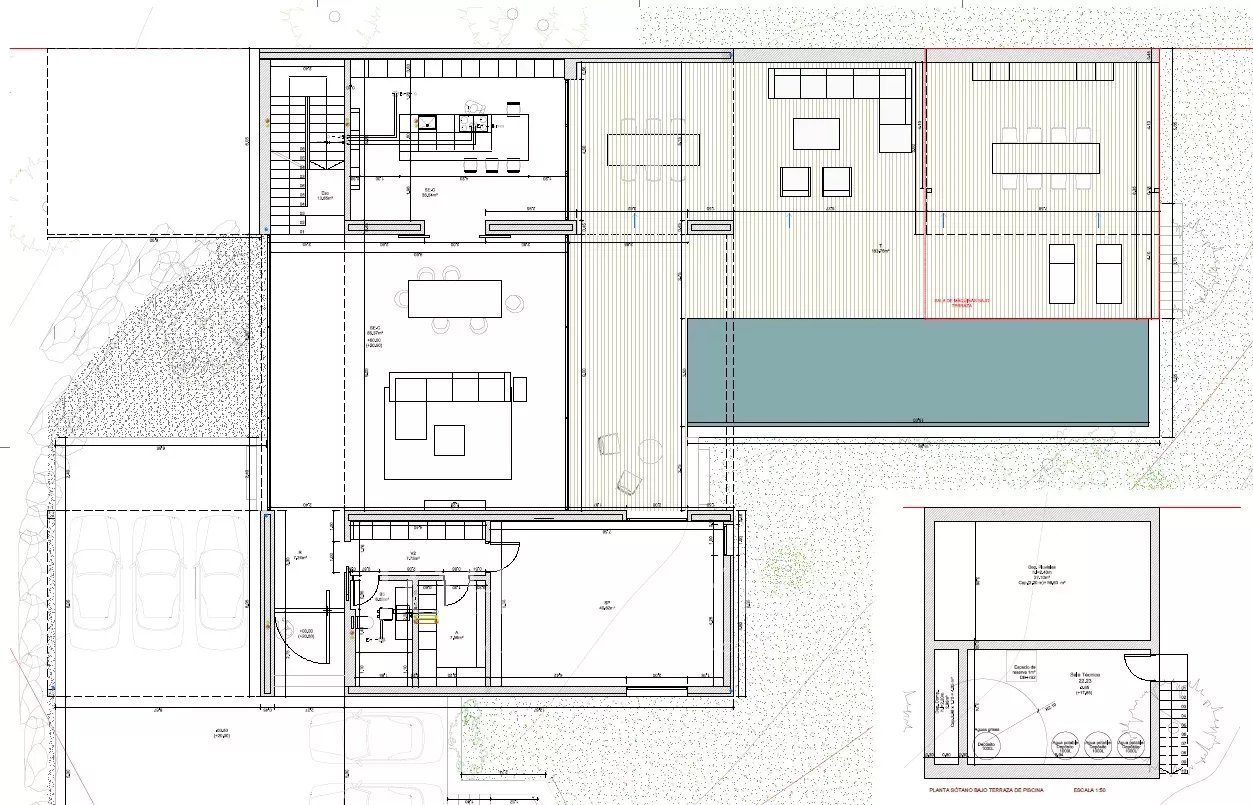
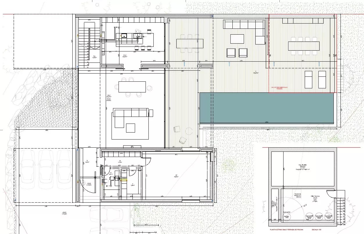
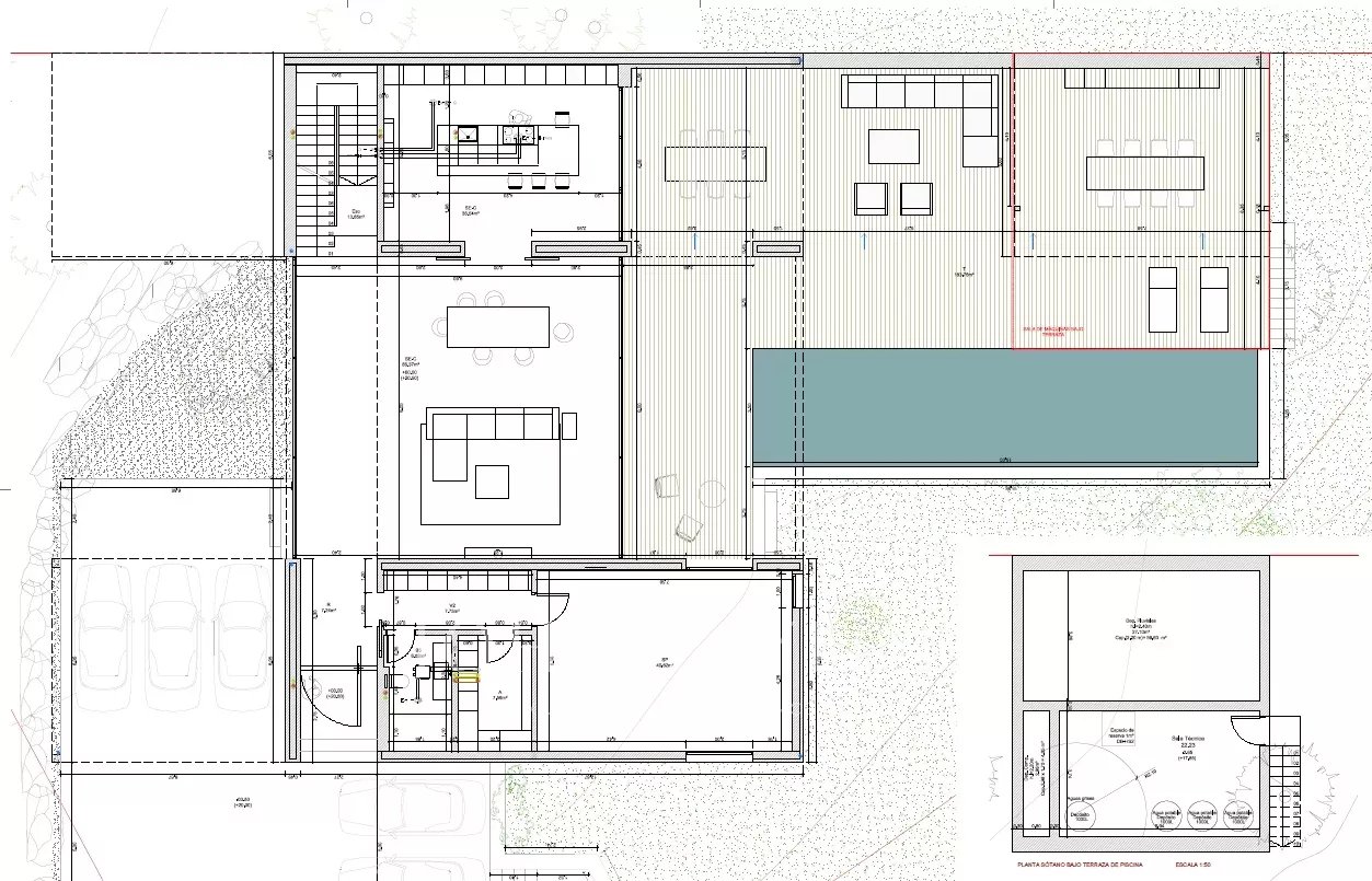
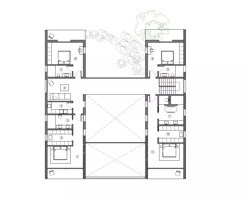
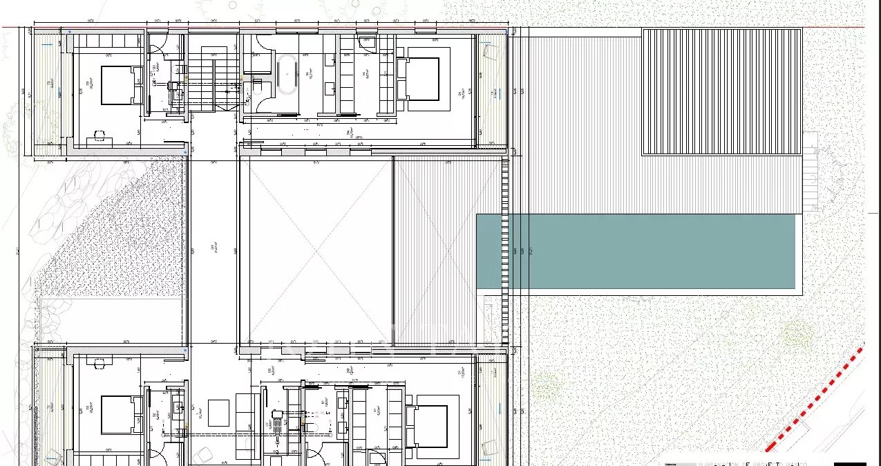
Projekt vily má 2 podlaží, v přízemí se nachází kuchyně s centrálním ostrůvkem, prostorná obývací jídelna s velkými okny, která se otevírají přímo na terasu a zahradu. V přízemí se nachází další místnost, kterou lze využít jako pracovnu nebo další ložnici. Na terase se nachází krytá veranda vedle 15 metrů dlouhého bazénu.
V horním patře jsou 4 ložnice, všechny s koupelnami a 2 z nich hlavní ložnice s individuálními šatnami každá a dodáváme, že projekt má technickou místnost a garáž.
Rádi si společně s vámi prostudujeme plány této nemovitosti a poskytneme vám kontakt na architekty, abychom tento projekt zdokonalili a vy mohli mít na Mallorce dům svých snů. Výstavba domu by mohla být zahájena okamžitě.
Krásná oblast Cala Vinyas fascinuje mnoho lidí svou křišťálově čistou azurově modrou vodou. Útulné restaurace a lázeňská zóna některých blízkých hotelů vybízejí k relaxaci a odpočinku. Navzdory klidu této oblasti je vzdálena pouhých 8 km od známého přístavu "Port Adriano", kde si užijete nefalšovaný luxus a širokou nabídku restaurací.

Občanská Vybavenost

  • Obchody
  • Pláž
  • Centrum města
  • Park
  • Supermarket
  • Mořský přístav
  • Tenis
  • Golf
  • Letiště
  • Moře
  • Dálnice

Luxusní realitní kancelár SANTA PONSA
  • Licencia Santa Ponsa Real Estate s.l.u.
    Gran Via Puig des Castellet 1 y 2, Bloque 4, Local 5
  • 07180 SANTA PONSA
  • Islas Baleares, ŠPANĚLSKO

John Taylor
Kontaktní formulář

* Povinná pole
Požadované údaje jsou nutné ke zpracování Vaší žádosti. Máte právo do svých údajů kdykoli nahlédnout, změnit je a vymazat.