• Prostory Na prodej Centro, Justicia, Madrid
    950 000 EUR

Plocha 154 m²154 m²2 Koupelna2 KoupelnaExpozice South South Výhled  ulice Nádvoří ulice Nádvoří 

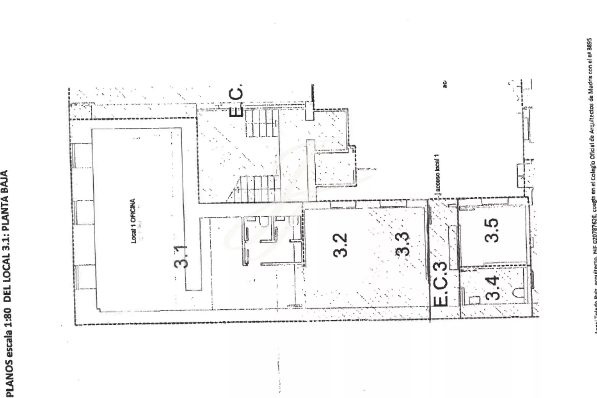
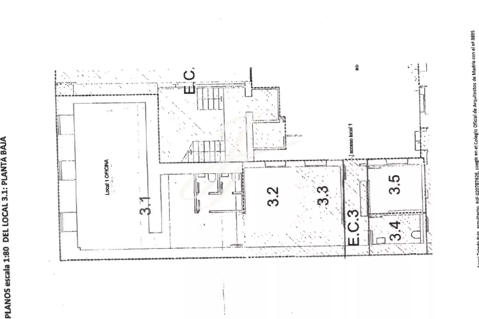
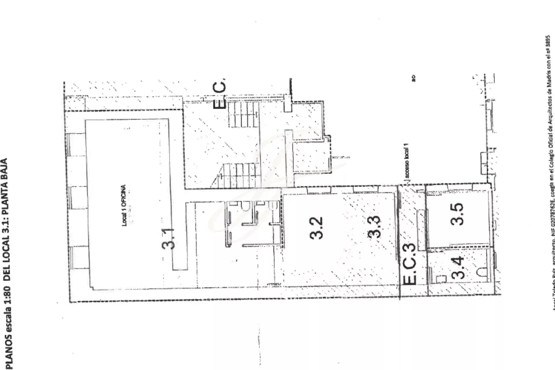
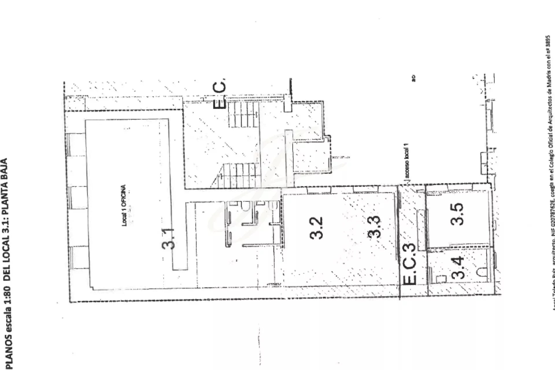
Místní kancelář v Justicii

  • V0525MCH
  • Prodej
  • Prostory

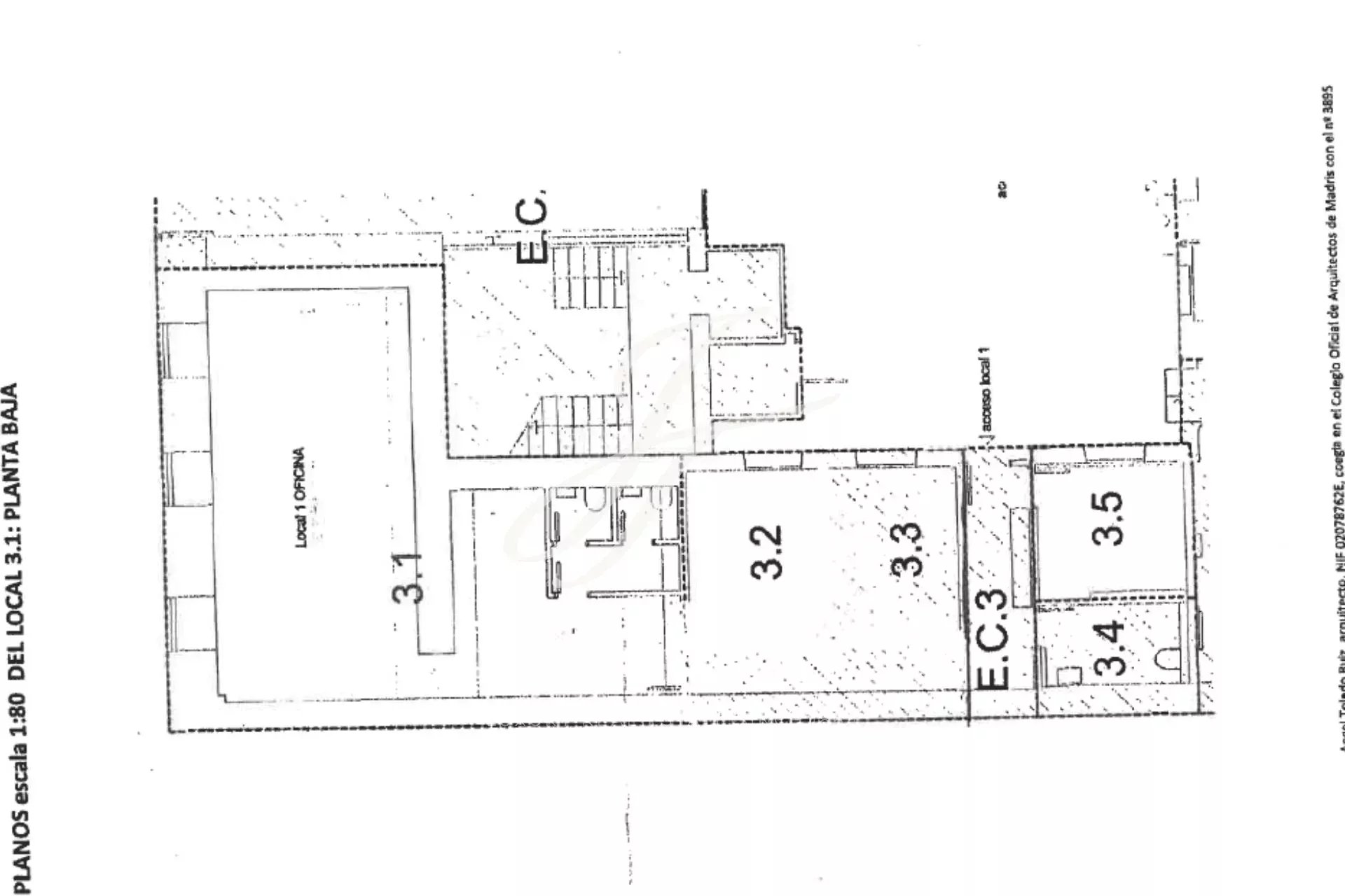
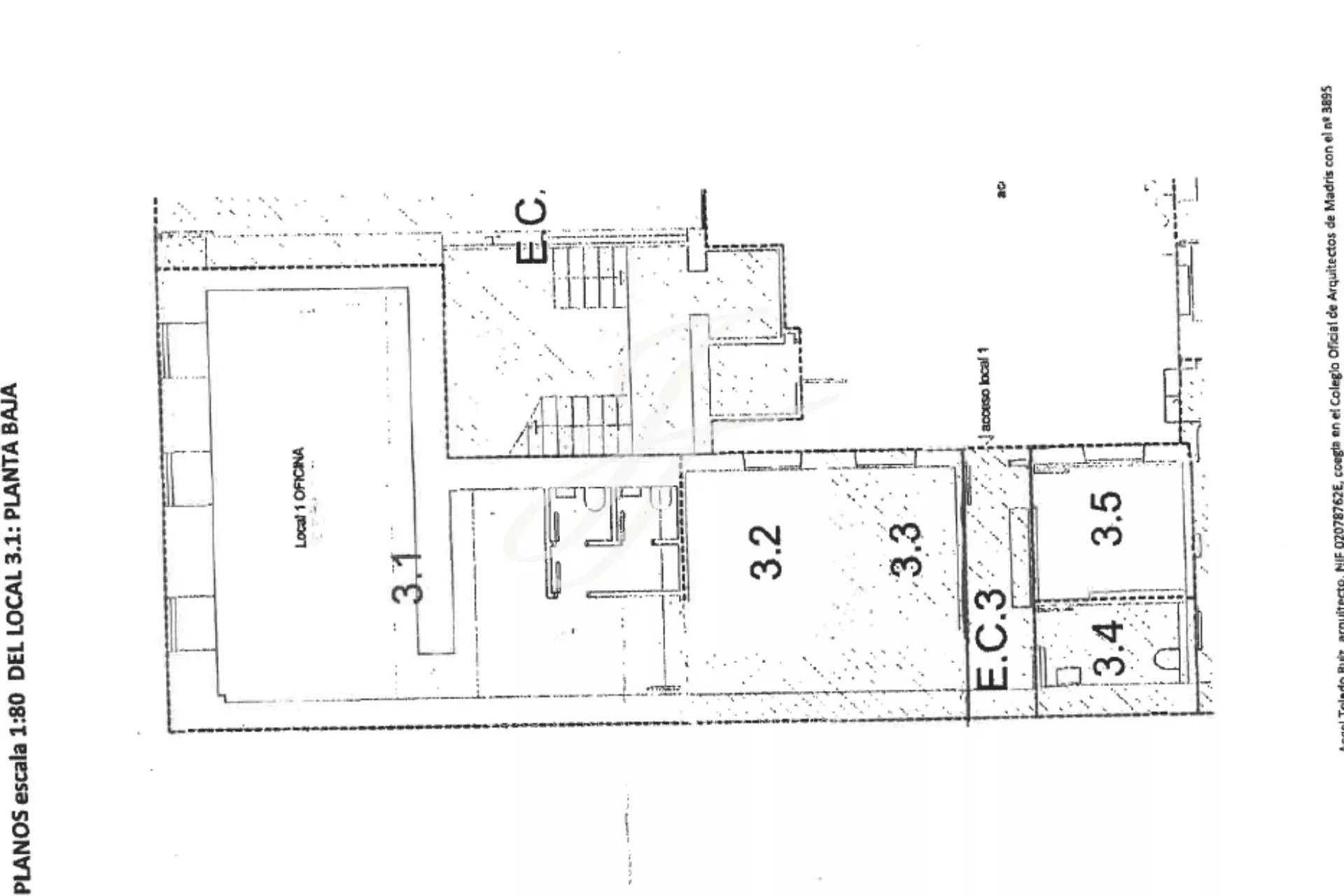
Místní kancelář v polosuterénu se 3 velkými okny na jih, světlá.

Objekt má otevřený půdorys rozdělený do dvou hlavních místností a dvou koupelen. Nedávno prošla rekonstrukcí, která zahrnovala instalace počítačové elektroinstalace a topného systému.

Má také čtvrtou skladovací místnost a další třetí koupelnu, která čeká na rekonstrukci, což nabízí možnosti úpravy podle potřeb nového majitele nebo nájemce.

Tento prostor se nachází v jedné z nejvyhledávanějších částí čtvrti Justicia a je ideální pro kancelářské i obchodní prostory s pohodlným přístupem a výbornou komunikací.

Občanská Vybavenost

  • Autobus
  • Autobusová zastávka
  • Obchody
  • Doktor
  • Stanice
  • Veřejné parkoviště
  • Supermarket
  • Letiště

Luxusní realitní kancelár MADRID - CHAMBERÍ
  • JT REAL ESTATE CHAMBERI/CENTRO SL
    Plaza de las Salesas, 6
  • 28004 MADRID - CHAMBERÍ
  • ŠPANĚLSKO

John Taylor
Kontaktní formulář

* Povinná pole
Požadované údaje jsou nutné ke zpracování Vaší žádosti. Máte právo do svých údajů kdykoli nahlédnout, změnit je a vymazat.