• Penthouse Na prodej Palma De Mallorca, Paseo Maritimo, Mallorca
    5 100 000 EUR

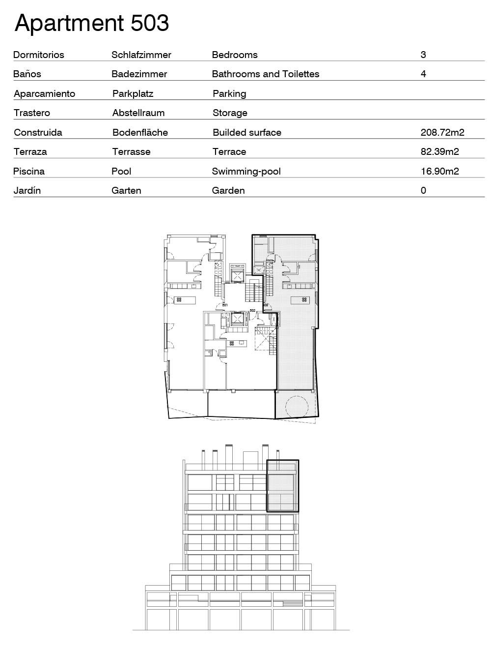
Plocha 209 m²209 m²3 Pokoje3 PokojeVelikost Terasy  83 m²83 m²4 Koupelna4 KoupelnaPodlaha 4/6Podlaha 4/6Výhled  Neomezeně Přístav Město Moře Neomezeně Přístav Město Moře Plavecký bazénPlavecký bazénParkování / ParkováníParkování

Harbour Loft - nejlepší adresa

  • V0163PM
  • Prodej
  • Penthouse

Nabízí 3 ložnice/4 koupelny v nejnovějším vývoji na proslulém Paseo Maritimo. Harbour Lofts kombinují výjimečný design, fantastický výhled a kvalitu života. To se odráží v celé nemovitosti s prvotřídními materiály, zařízením a vybavením. Skvělou energií oplývá celý jeho otevřený design, okna od podlahy ke stropu, chladící kryté verandy pro pohodlné stolování nebo vychutnávání slunce na soukromé střešní terase s chill out área a krásným bazénem. Ideální poloha pro ty, kteří hledají město i moře na dosah ruky. Na přiložených snímcích jsou penthousy a budova.

Tato nádherná a ikonická promenáda vede souběžně s nábřežím Palmy. Široká třída lemovaná palmami se skládá z chodníku pro pěší a cyklostezky a je oblíbená jak u místních obyvatel, tak u turistů. oficiální název promenády je Avenida Gabriel Roca, podle hlavního inženýra palmského přístavu v letech 1940-1962. Pohled na plavidla podél Palmské zátoky, od luxusních superjachet až po malé rybářské lodě, je příjemným způsobem, jak strávit den. Každé jaro se v přístavu koná Palma Superyacht Show, kde se představují nejúžasnější jachty na trhu. Na Paseo najdete také muzeum současného umění Es Baluard, kde se konají zajímavé výstavy a akce. Palma de Mallorca je známá především díky historické katedrále La Seu, mistrovskému dílu gotické architektury, která je ikonou města i Pasea. Podél Paseo Maritimo si můžete vybírat z mnoha restaurací a barů. V kombinaci klidného výhledu na přístav a rozmanité nabídky si jistě každý najde něco pro sebe. dobrou volbou je poměrně nově otevřený Mercat 1930, který je navíc otevřen každý den. Na nábřeží s výhledem na katedrálu se nachází také C'an Eduardo, který je známý svými vynikajícími paellami a fideuàs. Další možností je Sa Cranca s lahodnými paellami a čerstvými mořskými plody a s nádherným výhledem na přístav. The Boathouse se nachází v srdci palmské třídy Paseo Maritimo a nabízí místním obyvatelům i turistům neformální stravování na nábřeží. Boathouse podává klasická jídla v krásném a uvolněném prostředí. podél promenády se nachází několik hotelů, například pětihvězdičkový Gran Melia Victoria nebo čtyřhvězdičkový Hotel Costa Azul.

Občanská Vybavenost

  • Autobus
  • Autobusová zastávka
  • Obchody
  • Pláž
  • Centrum města
  • Doktor
  • Taxi
  • Veřejné parkoviště
  • Park
  • Supermarket
  • Mořský přístav
  • Denní péče
  • Tenis
  • Filmy
  • Střední škola
  • Sportovní centrum
  • Letiště
  • Moře
  • Dálnice
  • Kongresové centrum

Luxusní realitní kancelár PALMA MALLORCA
  • JT Real Estate Palma SL
    Carrer Constitució 8
  • 07001 PALMA MALLORCA
  • Islas Baleares, ŠPANĚLSKO

John Taylor
Kontaktní formulář

* Povinná pole
Požadované údaje jsou nutné ke zpracování Vaší žádosti. Máte právo do svých údajů kdykoli nahlédnout, změnit je a vymazat.