• Stavební pozemky Na prodej Beausoleil, Francouzská Riviéra, Francie
    7 500 000 EUR

Pozemek 4 460 m²4 460 m²Expozice South South Výhled  Panoramatický Moře Panoramatický Moře Plavecký bazénPlavecký bazénKlimatizaceKlimatizace

4460 M2 STAVEBNÍ POZEMEK - KOUSEK OD MONAKA - VÝHLED NA MOŘE

  • V1997SJ
  • Prodej
  • Stavební pozemky

Na výšinách Beausoleil, na hranici s Monakem, vzácná příležitost pro pozemek o rozloze 4460 m2.
V současné době je na něm vila k rekonstrukci.
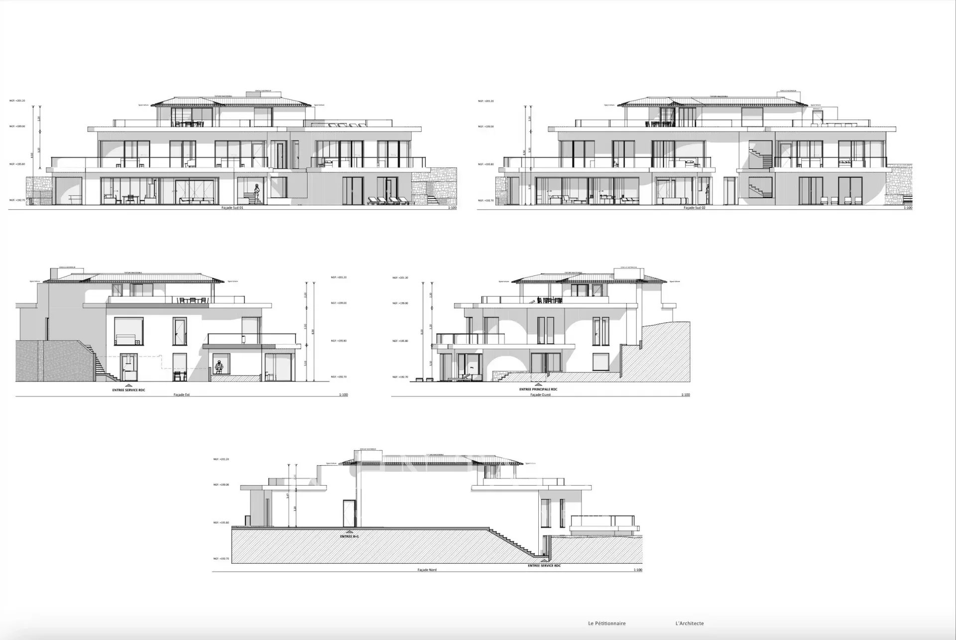
Možnost výstavby vily o rozloze až 1100 m2 s bazénem, garážemi, parkovištěm a to vše zasazené do upraveného pozemku.
K dispozici je schválený a vyčištěný projekt vily, kde budete mít luxus upravenou střešní terasu s panoramatickým výhledem na Monako a Středozemní moře.
Tato vila bude těžit z ideální polohy, výjimečného prostředí kombinujícího komfort a blízkost pouhých 5 minut od Monackého knížectví.
Skutečná příležitost postavit špičkovou vilu s velkou garáží.

Občanská Vybavenost

  • Obchody
  • Pláž
  • Centrum města
  • Supermarket
  • Letiště
  • Dálnice

Luxusní realitní kancelár SAINT JEAN CAP FERRAT
  • JOHN TAYLOR SAS
    1 bis avenue Albert 1er
  • 06230 SAINT JEAN CAP FERRAT
  • Alpes-Maritimes, FRANCIE

John Taylor
Kontaktní formulář

* Povinná pole
Požadované údaje jsou nutné ke zpracování Vaší žádosti. Máte právo do svých údajů kdykoli nahlédnout, změnit je a vymazat.